Community Development & Services Resources
Below are all the public document resources pertaining to Community Development & Services Department. If you do not find what you are looking here. Please check any of the other department resources pages, the full resources list page, or contact city hall.
| Quick View | Document Name | Category | Download / Preview |
|---|---|---|---|
| Annual & Five Year Mitigation Fee Act AB 1600 Report on Development Impact Fees for Fiscal Year Ending 6-30-21 | Community Development & Services | ||
| Annual Mitigation Fee Act AB 1600 Report on Development Impact Fees for Fiscal Year Ending 6-30-22 | Community Development & Services | ||
| Annual Mitigation Fee Act AB 1600 Report on Development Impact Fees for Fiscal Year Ending 6-30-23 | Community Development & Services | ||
| Annual Mitigation Fee Act AB 1600 Report on Development Impact Fees for Fiscal Year Ending 6-30-24 | Community Development & Services | ||
| Application for Employment | Administration, Community Development & Services, Finance, Parks & Public Works | ||
| Biomass Cogeneration Facility Feasibility Analysis & Business Case | Community Development & Services | ||
| Biomass Feasibility Study Appendix A | Community Development & Services | ||
| Biomass Feasibility Study Appendix B | Community Development & Services | ||
| Biomass Feasibility Study Appendix C Part 1 | Community Development & Services | ||
| Biomass Feasibility Study Appendix C Part 2 | Community Development & Services | ||
| Building Permit Application | Building Division, Community Development & Services | ||
| Business Recycling | Community Development & Services | ||
| Cannabis Dispensary Zoning Changes | Building Division, Community Development & Services | ||
| Capital Improvement Program 2022-2027 Final (Adopted) | Community Development & Services | ||
| Code Enforcement Complaint Form | Building Division, Community Development & Services, Fire | ||
| Community Development Block Grant Public Notice | Community Development & Services | ||
| Consumer Confidence Report 2018 | Community Development & Services | ||
| Consumer Confidence Report 2019 | Community Development & Services | ||
| Design Construction Standards September 2017 | Building Division, Community Development & Services | ||
| Design Review | Community Development & Services, Planning Division | ||
| Downtown Revitalization Plan for the City of Willows 2003 | Community Development & Services | ||
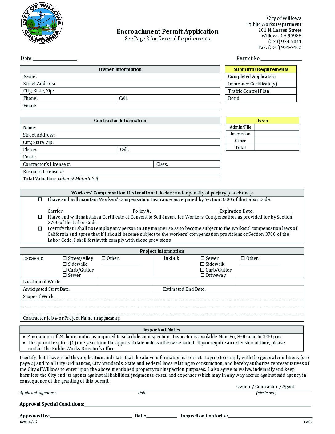
| Encroachment Permit | Building Division, Community Development & Services | ||
| Environmental Impact Report Willows General Plan Update August 2022 (Part 1) | Community Development & Services | ||
| Environmental Impact Report Willows General Plan Update August 2022 (Part 2) | Community Development & Services | ||
| Environmental Impact Report Willows General Plan Update November 2022 | Community Development & Services | ||
| Environmental Information Form | Community Development & Services | ||
| Existing Conditions Report 2020 | Community Development & Services | ||
| Facade Improvement Application 10-24-18 | Building Division, Community Development & Services | ||
| FPI 001 Application for Occupancy Compliance Inspection | Community Development & Services, Fire | ||
| FPI 002 Fire Code Fee Schedule | Community Development & Services, Fire | ||
| FPI 003 Confidential Business Occupancy Information | Community Development & Services, Fire | ||
| FPI 004 Fire Safety Self Inspection Form Commercial | Community Development & Services, Fire | ||
| FPI 005 Fire Safety Self Inspection Form Residential | Community Development & Services, Fire | ||
| FPI 006 Fire Inspection Standard Operating Guidelines | Community Development & Services, Fire | ||
| General Plan (Final) November 2022 | Community Development & Services | ||
| General Plan 03-30-22 (Public Review Draft) | Community Development & Services | ||
| General Plan Landuse Map June 2010 | Community Development & Services | ||
| Glenn County Multi Jurisdiction Hazard Mitigation Plan Part 1 | Community Development & Services | ||
| Glenn County Multi Jurisdiction Hazard Mitigation Plan Part 2 | Community Development & Services | ||
| Glenn Transit Service | Community Development & Services | ||
| Historic Downtown and Wood Street Design Guidelines | Community Development & Services | ||
| Inter-Agency Service Request Form | Community Development & Services | ||
| Master Fee Schedule 07-01-25 | Community Development & Services | ||
| Morrison Feasibility Analysis | Community Development & Services | ||
| Notice to Bidders for Sewer Project with BPX & Zoom Info | Community Development & Services | ||
| Ordinance 719 2016 | Community Development & Services | ||
| Ordinance 736 2017 | Community Development & Services | ||
| Ordinance 740 2018 | Community Development & Services | ||
| Ordinance 745 2019 | Community Development & Services | ||
| Park Permit | Community Development & Services | ||
| Permit Application Checklist | Community Development & Services | ||
| Retail Cannabis Application Package | Community Development & Services | ||
| RFQ for Jensen Park Lights Project | Community Development & Services | ||
| Sewer Rate Study and Public Meeting Announcement Amended | Community Development & Services | ||
| Street Excavation Rules | Community Development & Services | ||
| Street Use Permit 2025 | Community Development & Services | ||
| USA Waste 1962 Master Franchise | Administration, Community Development & Services | ||
| Waste Water Rate Study 2019 | Community Development & Services |

























































